
















EDIFICIOS RESERVA SAN FRANCISCO
En uno de los mejores sectores residenciales de Las Condes, Edificios Reserva San Francisco de Enaco ofrece departamentos nuevos en San Carlos de Apoquindo, amplios y de arquitectura contemporánea, en el que cada ascensor surte a sólo dos departamentos por cada piso. Emplazados en una construcción de baja altura, donde el condominio cuenta con generosos espacios comunes, que incluyen un gran parque central, salas multiuso y gimnasios.
Estos exclusivos departamentos se encuentran en las inmediaciones del cruce entre San Francisco de Asís y Francisco Bulnes Correa, inmediatamente sobre el sector de San Damián; su ubicación resalta por su consolidado carácter residencial y familiar, destacando a su vez por una privilegiada conectividad que entrega su cercanía a Av. Las Condes, a Costanera Norte y a Av. San Carlos de Apoquindo. Colegios, Universidades, Clínicas, Supermercados, Centros Comerciales y todo tipo de servicios se encuentran fácilmente accesibles desde Edificios Reserva San Francisco, cuyo emplazamiento además disfruta de excelentes vistas.
Información de Contacto
- Martes a Viernes de 15:30 a 19:30 hrs.
- Sábados, Domingos y Festivos de 11:00 a 19:30 hrs.
Mapa interactivo
Estado del proyecto
Click para ver galeríaModelos Disponibles
Departamento tipo A1
Galería de fachadas y plantas
- 186,43 m² útiles
Dormitorio principal en suite con 2 Walk in closets – Baño de visitas – Dependencias de servicio – Cocina equipada – Sala de estar.
Departamento tipo A2
Hasta 192,20 m² útilesGalería de fachadas y plantas
- Edif 1, 2 y 3: 192,20 m² útiles
- Edif 4: 190,73 m² útiles
Dormitorio principal en suite con 2 Walk in closets – Baño de visitas – Dependencias de servicio – Cocina equipada – Sala de estar
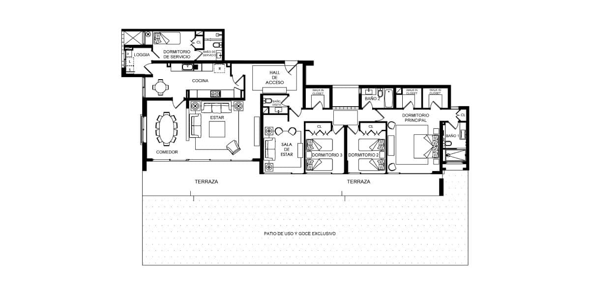
Departamento tipo A2 Patio
Hasta 192,20 m² útilesGalería de fachadas y plantas
- Edif 1, 2 y 3: 192,20 m² útiles + patio de uso y goce exclusivo
- Edif 4: 190,73 m² útiles + patio de uso y goce exclusivo
Dormitorio principal en suite con 2 Walk in closets – Baño de visitas – Dependencias de servicio – Cocina equipada – Sala de estar.
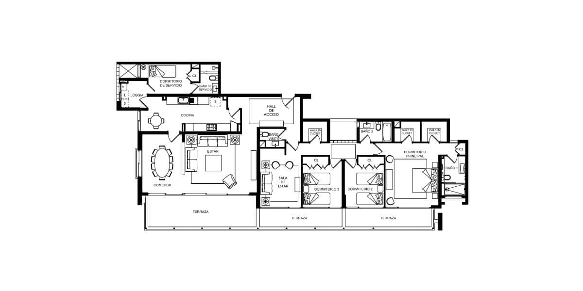
Departamento tipo B1
Hasta 193,50 m² útilesGalería de fachadas y plantas
- Edif 1, 2 y 3: 193,50 m² útiles
- Edif 4: 191,10 m² útiles
Dormitorio principal en suite con 2 Walk in closets – Baño de visitas – Dependencias de servicio – Cocina equipada – Sala de estar.
Recorrido Virtual Departamento tipo B1
Departamento tipo B2
Hasta 193,50 m² útilesGalería de fachadas y plantas
- Edif 1, 2 y 3: 193,50 m² útiles
- Edif 4: 191,39 y 191,14 m² útiles
Dormitorio principal en suite con 2 Walk in closets – Baño de visitas – Dependencias de servicio – Cocina equipada – Sala de estar.
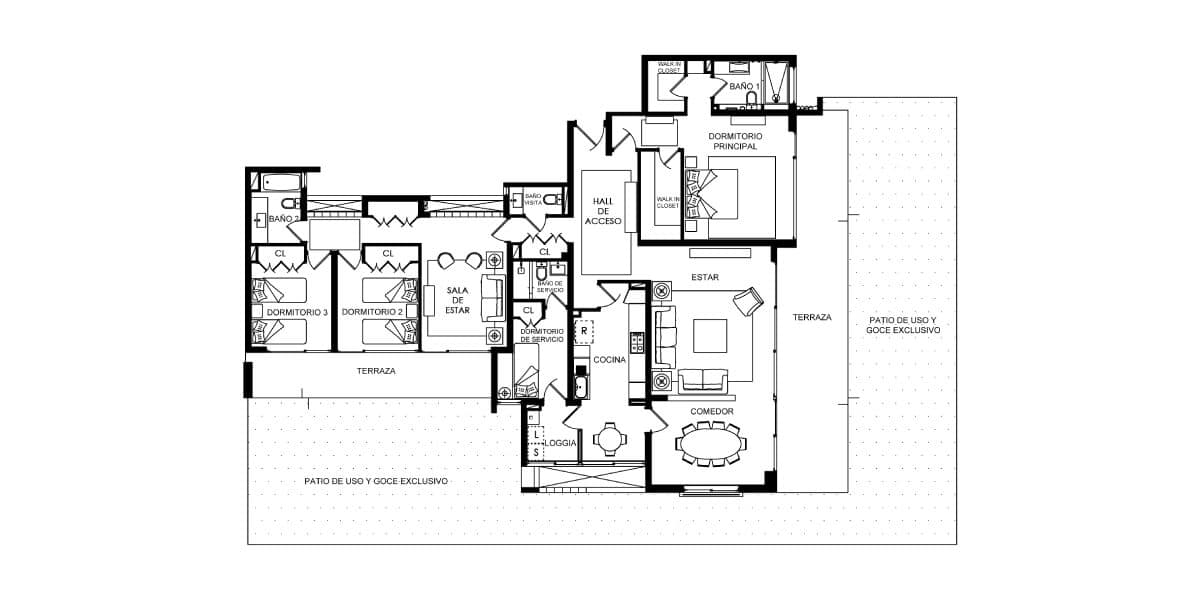
Departamento tipo B2 Patio
Hasta 193,32 m² útilesGalería de fachadas y plantas
- Edif 1, 2 y 3: 193,32 m² útiles + patio de uso y goce exclusivo
- Edif 4: 191,39 y 191,14 m² útiles + patio de uso y goce exclusivo
Dormitorio principal en suite con 2 Walk in closets – Baño de visitas – Dependencias de servicio – Cocina equipada – Sala de estar.
Entorno del proyecto
Sala de Ventas
Información de Contacto
- Martes a Viernes de 15:30 a 19:30 hrs.
- Sábados, Domingos y Festivos de 11:00 a 19:30 hrs.






